Listing Tools

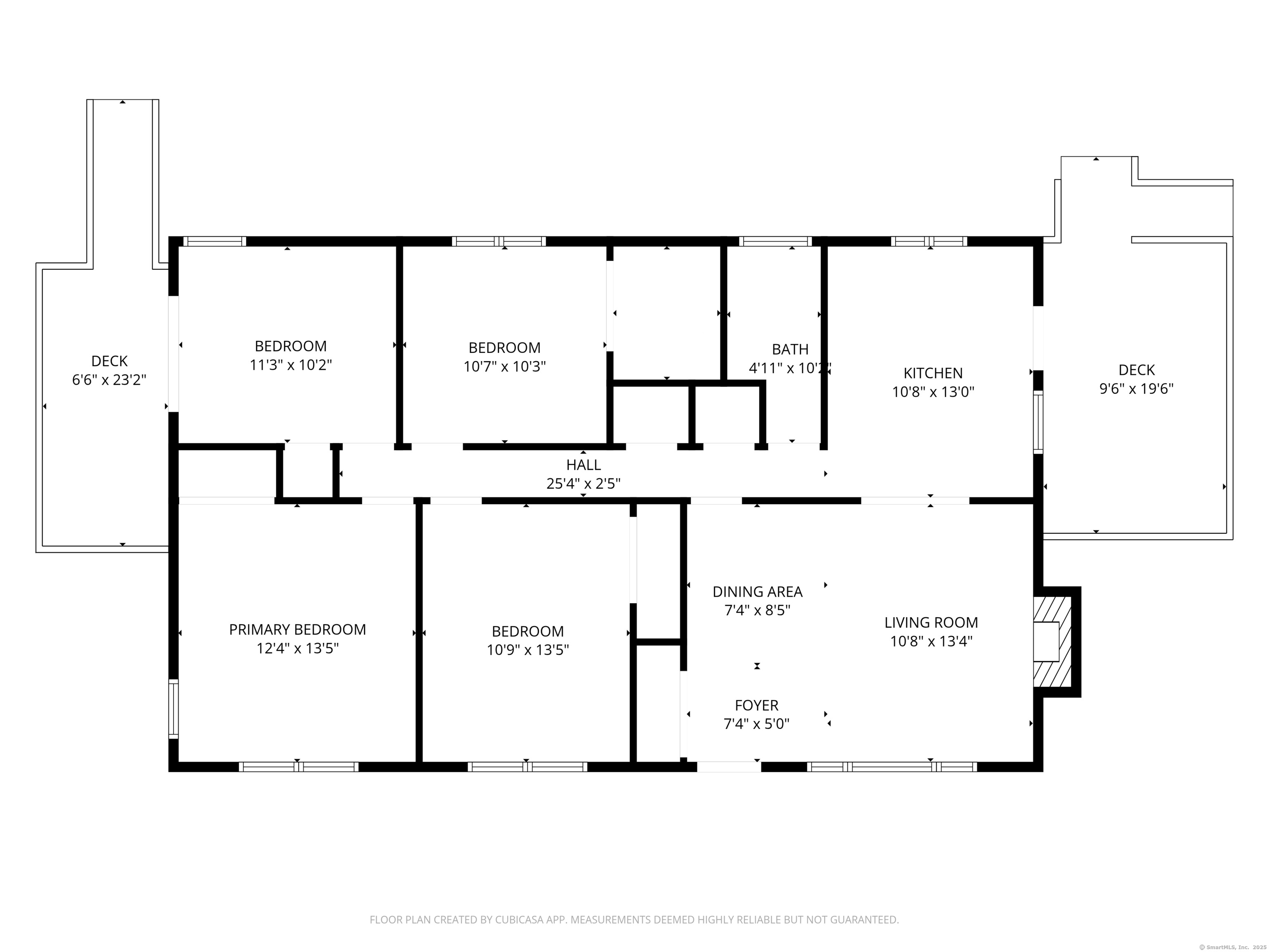
Looking for a project? Come see this ranch style home on nice 1/2 acre corner lot with tons of potential. The home is spacious, with the kitchen open to the large living room, three bedrooms, and an additional room with sliders to a deck and backyard, which could be used as a 4th bedroom, den or office. There is a full 1288 Sqft basement with a partially finished rec room, a work shop, laundry area, 1/2 bath, utility room and storage space. It is wired for a generator. The home needs a clean out and TLC but appears solid with newer mechanicals. There appear to be hardwood floors under all carpets on the main floor. ***This is a probate sale, subject to probate court approval. Buyer to do due-diligence. Being sold in AS-IS/WHERE-IS including personal property ***

Property Details of 14 Edgarton Road

Map Location

Driving Directions

Listed by Christy L. Lofstrom of ERA Blanchard & Rossetto ((860) 539-0533)

The data relating to real estate for sale on this website appears in part through the SmartMLS Internet Data Exchange program, a voluntary cooperative exchange of property listing data between licensed real estate brokerage firms, and is provided by SmartMLS through a licensing agreement. Listing information is from various brokers who participate in the SmartMLS IDX program and not all listings may be visible on the site. The property information being provided on or through the website is for the personal, non-commercial use of consumers and such information may not be used for any purpose other than to identify prospective properties consumers may be interested in purchasing. Some properties which appear for sale on the website may no longer be available because they are for instance, under contract, sold or are no longer being offered for sale. Property information displayed is deemed reliable but is not guaranteed. Copyright 2025 SmartMLS, Inc.

Hi there! How can we help you?

Contact us using the form below or give us a call.

Send Us A Message:

I agree to be contacted by Georgieanna Fisher via call, email, and text for real estate services. To opt out, you can reply 'stop' at any time or reply 'help' for assistance. You can also click the unsubscribe link in the emails. Message and data rates may apply. Message frequency may vary. Privacy Policy.

Do not fill in this field:

This site is protected by reCAPTCHA and the Google Privacy Policy and Terms of Service apply.