Listing Tools

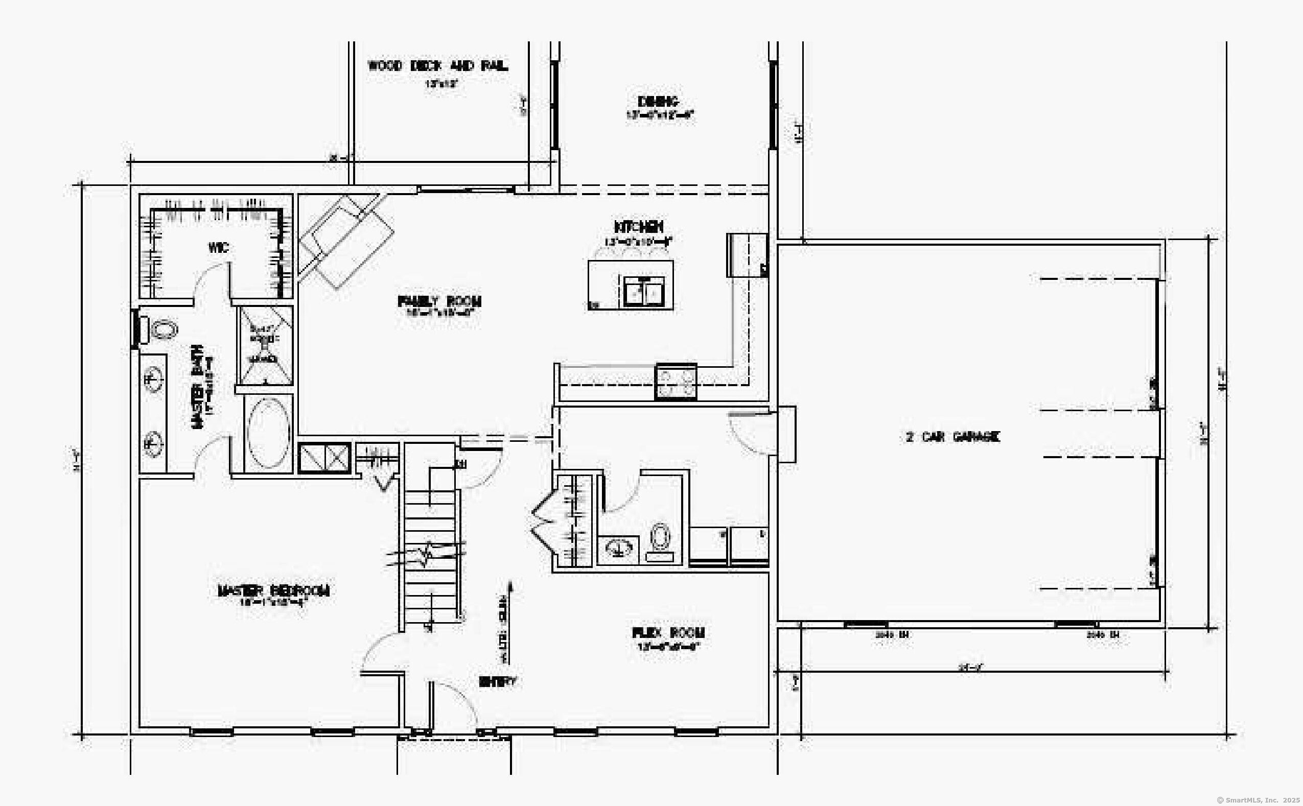
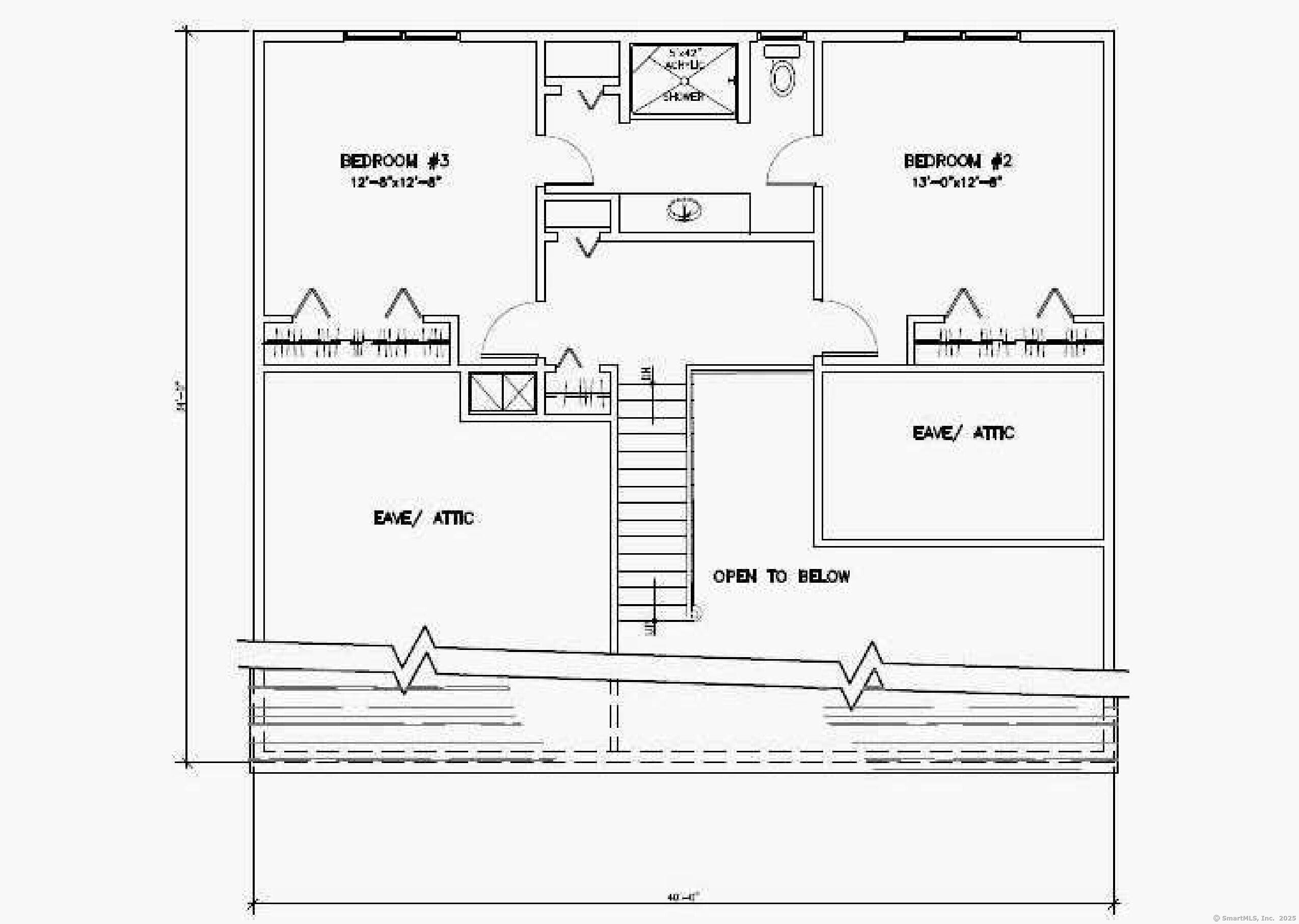
Last homesite available with Carma, LLC. Lake Overlook Estates - en enclave of 12 homesites with stunning seasonal views of Lake Pocotopaug. This beautiful Cape offers it all. You will enjoy the classic historic Cape look on the exterior, framed by a brick center chimney. The inside is wow! You walk into an oversized entry boasting an open staircase offering vaulted ceilings in entry and 2 story front/flex room. You will make your way to the back of the home which is one entire great room offering corner fireplace, large open kitchen and amazing 13'x12.5' dining room with 6 big beautiful windows letting the outside in. The first floor primary suite is the entire left side of the home with amazing closet space, oversized bathroom and shower and soaking tub. Upstairs offers 2 large bedrooms and an oversized full bath with each bedroom having its own bathroom entrance with optional upstairs office/4th bedroom. This design is truly a winner, combining the historic charm of the 1800's with amazing open dramatic floor plan with first floor primary. Some additional standard features include granite counters, onsite finished hardwood floors throughout on first and second floor, gas fireplace, deck and many cabinet options. The list goes on! Public sewer, public water. This last homesite is one of the prime homesites. 15 minutes to downtown Middletown, offering an array of restaurants, 12-plex movie theater and Main St shopping. 30 minutes to CT's beautiful shoreline towns & beaches.

Property Details of 7 Freya Lane

Map Location

Driving Directions

Listed by Mark A. Toledo of Berkshire Hathaway NE Prop. ((860) 301-2339)

The data relating to real estate for sale on this website appears in part through the SmartMLS Internet Data Exchange program, a voluntary cooperative exchange of property listing data between licensed real estate brokerage firms, and is provided by SmartMLS through a licensing agreement. Listing information is from various brokers who participate in the SmartMLS IDX program and not all listings may be visible on the site. The property information being provided on or through the website is for the personal, non-commercial use of consumers and such information may not be used for any purpose other than to identify prospective properties consumers may be interested in purchasing. Some properties which appear for sale on the website may no longer be available because they are for instance, under contract, sold or are no longer being offered for sale. Property information displayed is deemed reliable but is not guaranteed. Copyright 2026 SmartMLS, Inc.

Hi there! How can we help you?

Contact us using the form below or give us a call.

Send Us A Message:

I agree to be contacted by Georgieanna Fisher via call, email, and text for real estate services. To opt out, you can reply 'stop' at any time or reply 'help' for assistance. You can also click the unsubscribe link in the emails. Message and data rates may apply. Message frequency may vary. Privacy Policy.

Do not fill in this field:

This site is protected by reCAPTCHA and the Google Privacy Policy and Terms of Service apply.